Termékleírás

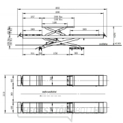
A 4000 kg-os hidraulikus ollós emelő a padlóba süllyesztett, és bemélyedésekkel rendelkezik az első forgóplatformok, az integrált hátsó mozgatható platformok és az ollós emelő számára. Ezért ideális kerékkiegyenesítési mérésekhez és járművek alatti munkákhoz.


Hidraulikus ollós emelő 4000 kg teherbírással. Ezt az ollós emelőt széles körben használják autószerelő műhelyekben és gumiszervizekben. Mivel az emelő a padlóban előkészített nyílásba van felszerelve, leengedéskor nem foglal helyet. A nagy maximális emelőképességnek köszönhetően teljes értékű emelő, amely a jármű alatti munkákhoz is használható.

Az emelő mélyedésekkel rendelkezik az elülső forgatható félsínekhez, integrált hátsó mozgóplatformokhoz és ollós emelőhöz, így ideális a futóműbeállítás méréséhez .

Kényelmes vezérlés külön 24 V-os egységgel, mindkét platform emelési magasságának automatikus szinkronizálása.

Az ollós emelő számos biztonsági funkcióval rendelkezik:

  • süllyesztési sebesség szabályozása nyomásszivárgás esetén (pl. tömlő sérülése)
  • biztonsági kapcsoló, 24 V-os elektronika
  • védelem az alsó helyzetbe süllyesztéskor, hangjelzés kíséretében
  • 4 darab támasztóláb
  • A biztonsági zárakat külső tápellátásból származó sűrített levegő működteti
  • teherbírás 3200 kg

A szállítási díjat a mérettől függően, egyedileg határozzuk meg.